Секретариат:
(3953) 356-050
Факс:
(3953) 356-055
Производственный отдел:
(3953) 356-054
E-mail:
info@brazmk.ru
crmz@mail.ru

Братский завод металлоконструкций

Новости

30.06.2022/В Иркутской области завершено формирование команды для участия в VII Международных спортивных играх «Дети Азии»
В Иркутской области завершено формирование команды для участия в VII Международных спортивных играх «Дети Азии», которые с 27 июля по 8 августа пройдут во Владивостоке. В состав команды включено 23 человека, из них 17 спортсменов и шесть тренеров.
28.06.2022/Иркутский аэропорт намерен избавиться от репутации «некомфортного»
Здание Иркутского международного аэропорта не соответствует заявленным целям увеличения турпотока на Байкал - пропускная способность как международного терминала, так и терминала внутренних линий низкая. Тема была поднята в рамках парламентского часа на последней сессии Заксобрания.
24.06.2022/Ангарский цемент вошел в число лучших товаров Иркутской области
Портландцемент ЦЕМ I 42,5Н производства АО "Ангарскцемент" (управляющая компания - АО "ХК "Сибцем") удостоен диплома певрой степени регионального этапа Всероссийского конкурса программы "100 лучших товаров России" (6+) на территории Иркутской области, а также диплома конкурса "Иркутское качество"-2022.
23.06.2022/47 организаций из Иркутской области приняли участие в конкурсе "100 лучших товаров России"
Региональный этап конкурса "100 лучших товаров России" прошел в Иркутске 16-17 июня на базе "Сибэкспоцентра". В этом году за звание лучшего производителя в Иркутской области поборолись 47 организаций. Предприятия представили более 90 видов продукции, работ и услуг.
20.06.2022/Реконструкция тепловых сетей в Братске выходит на финальную стадию
В Центральном районе Братска En+ Group продолжает масштабную реконструкцию и экологическую модернизацию тепловых сетей. Специалисты вышли на финальную стадию работ.

Проект не только один из крупнейших, но и остро необходимый, говорят специалисты En+ Group.

 
АКЦИОНЕРНОЕ ОБЩЕСТВО
Братский завод металлоконструкций

Фермы стропильные, подстропильные (длина от 12,0 м до 48,0 м), виды ферм

Фермы стропильные

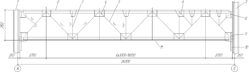
Стропильные фермы передают усилие колоннам (поз.1,7) через монтажные болты (поз.8,9) и опорные столики (поз.10) с фрезерованными торцами. В горизонтальных полках верхнего и нижнего поясов, а также в стойках фермы сделаны отверстия для крепления связей. Верхний пояс имеет детали для установки и крепления фермы фонаря (поз.5) на поперечном разрезе промышленного здания.

Стропильные фермы

Стропильные фермы представляют собой плоскостную решетчатую конструкцию. Фермы имеют верхний (поз.2) и нижний (поз.11) пояса, которые соединены между собой решеткой из уголков. Вертикальные элементы решетки - стойки (поз.3), наклонные - раскосы (поз.5). Уголки решетки с уголками поясов соединяются фасонками (поз.4,6) на сварке.
Стропильные фермы

Подстропильные фермы

Подстропильные фермы соединяют колонны (поз.2) одного ряда между собой. На подстропильные фермы опираются стропильные фермы (поз.6). Обычно стропильные фермы располагают на расстоянии 6м одну от другой, поэтому подстропильные фермы устанавливают на колонны, расположенные в 12м одна от другой и более. Верхние вертикальные связи (поз.1,7) воспринимают ветровую нагрузку, действующую на торцевые стены, и обеспечивают продольную жесткость верхней части каркаса. Нижние вертикальные связи (поз.5) воспринимают усилия от связей (поз.1,7), а также нагрузку от продольного торможения кранов и передают их на фундаменты колонн, обеспечивая продольную жесткость всего каркаса.
Подстропильные фермы
Монтажная схема колонн
1,7- верхние вертикальные связи, 2- колонна, 3 - подкрановая балка, 4,6 - подстропильная и стропильная фермы, 5 - нижние вертикальные связи

Подстропильные фермы (поз.4) имеют параллельные верхние и нижние пояса. В стойке решетки, расположенной в центре фермы, сделаны отверстия и столики для крепления стропильных ферм. В остальном подстропильные фермы не отличаются от стропильных.

Виды ферм

Очертания и системы решётки ферм (варианты ферм)

Очертания и системы решётки ферм

Увеличить изображение решеток ферм

Фермы с параллельными поясами (вид а) имеют наиболее простую схему, что соответствует требованиям индустриального изготовления.
Трапецеидальные фермы (вид б, е) применяются при рулонных и мастичных кровлях, не требующих крупных уголков.
Полигональные фермы (вид в) применяются при больших пролётах и нагрузках, как обеспечивающих существенное снижение массы.
Треугольные фермы (вид г, ж, з, и) применяются при кровлях из волнистых, асбестоцементных листов, черепицы, кровельной стали и других материалов требующих крутых (25÷45˚) уклонов.
В фермах, работающих на знакопеременную нагрузку, применяют крестовую решётку с гибкими диагоналями (вид к).
Полураскосная (вид л) и ромбическая (вид м) решётки, имеющие две системы раскосов, обладают большой жёсткостью и целесообразны при воздействии на фермы больших поперечных сил.

Сборка всех ферм производится по копирам на нивелированных стеллажах с высокой точностью, что повышает точность и производительность при монтаже данных металлоконструкций.

Вы можете нам написать, или просто заполнить форму связи , и мы Вам обязательно ответим.

Фотогалерея